Genießen Sie laue Sommerabende auf Ihrer Terrasse des gemütlichen und geräumigen Blockhaus Toledo.
Stilvolles Holzhaus aus nordischer Fichte
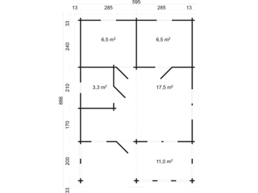
Sie sind auf der Suche nach einem stilvollen Freizeit- oder Ferienhaus aus Holz? Sie möchten bei Ihrem Freizeithaus nicht auf Platz und Komfort verzichten? Dann werfen Sie einen Blick auf das Blockhaus Toledo. Das moderne Blockhaus wurde aus unbehandelter nordischer Fichte gefertigt und ist so ein schöner Hingucker in jeder Umgebung. Mit den vier Zimmern und einer schönen Terrasse können Sie hier die Freizeit ohne Einschränkungen genießen.
So überzeugt das Blockhaus Toledo:
- Blockhaus Bausatz 5,95 x 6,46 m aus nordischer Fichte
- Massive 70mm Blockbohlen mit doppelter Nut und Feder
- Terrasse mit kesseldruckimprägniertem Holzboden und Brüstung
- 4 Innenräume mit extra hohen Türen (Nutzflächen: 36,0 m²)
- Winddichte Eckverzahnungen (Chaletfräsung)und Sturmsicherung mit durchgehenden Gewindestangen
- Stabile Dachpfetten und profilierte Massivholz-Dachbretter mit Nut und Feder
- Türen aus Leimholz mit Massivholzfüllung, Dichtungen, Edelstahlschwelle und Alu-Drückergarnitur mit Zylinderschloss
- Fenster mit Isolierverglasung in Wohnhausqualität mit Einhand-Dreh-/Kipp-Technik
- Scheiben einsilikoniert
- Alu-Wasserablauf und hochwertige Beschläge
- Inklusive Fundamentplan, Befestigungsmaterial und Aufbauanleitung
Geräumiges Blockhaus mit schöner Terrasse
In dem geräumigen Blockhaus Toledo können Sie es sich mit Freunden und Familie so richtig gemütlich machen. Das Holzhaus hat eine Nutzfläche von 36m² und vier Räume. Weiteren Platz zum Entspannen finden Sie auf der überdachten Terrasse an der Front mit einem kesseldruckimprägnierten Holzboden und einer umlaufenden Brüstung.
Massive und robuste Verarbeitung mit Sturmsicherung
Das Blockhaus Toledo ist aus massiven Blockbohlen mit doppelter Nut und Feder sowie stabilen Dachpfetten und Massivholz-Dachbrettern gefertigt. So ist das Haus besonders robust und langlebig. Durch die windgeschützte Eckverzahnung und die Sturmsicherung mit durchgehenden Gewindestangen trotzt das Holzhaus Wind und Wetter. Das Holzhaus hat Türen und Fenster in Wohnhausqualität mit Isolierverglasung und Dichtungen. Die Tür lässt sich mit der Alu-Drückergarnitur und dem Zylinderschloss sicher verschließen. Erweitern Sie das Haus mit individuellem Zubehör und gestalten Sie sich Ihr persönliches Blockhaus Toledo.