Qualitätsmerkmale Ferienhaus Toledo 70 C
|
- Blockhaus Bausatz aus nordischer Fichte
- Massive 70mm Blockbohlen mit doppelter Nut und Feder
- Terrasse mit kesseldruckimprägniertem Holzboden und Brüstung
- 4 Innenräume
- Winddichte Eckverzahnungen (Chalet-Fräsung) für sicheren Halt
- Sturmsicherung mit durchgehenden Gewindestangen
- Stabile Dachpfetten und profilierte Massivholz-Dachbretter mit Nut und Feder
- Fußboden (optional) aus massiven 18 / 28 mm starken Nut- und Federdielen mit Sockelleisten und kesseldruckimprägnierten Fundamenthölzern
- Eingangstür aus Leimholz mit Massivholzfüllung, Dichtungen, Edelstahlschwelle und Alu-Drückergarnitur mit Zylinderschloss
- Innentüren aus Leimholz mit Massivholzfüllung und Alu-Drückergarnitur mit Buntbartschloss
- Einhand Dreh-/Kipp-Fenster in Wohnhausqualität mit Isolierverglasung, Scheiben einsilikoniert, Dichtungen, Alu-Wasserablauf und hochwertigen Beschlägen
- inklusive Fundamentplan, Befestigungsmaterial und Aufbauanleitung
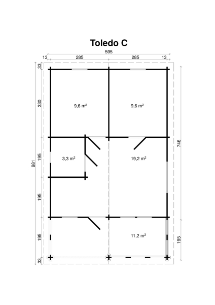
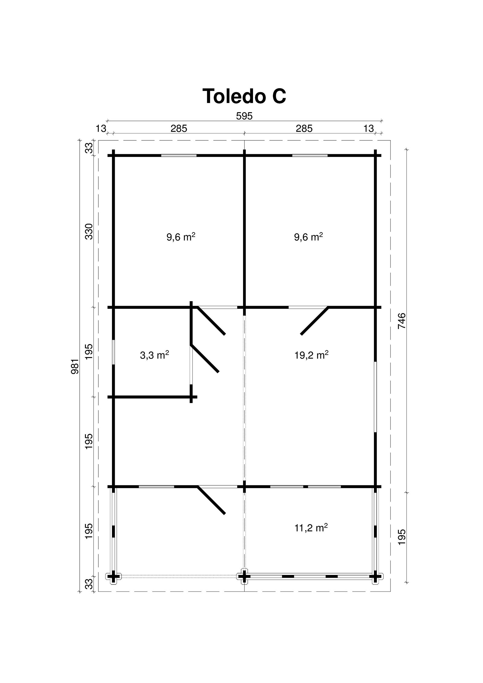
Maßangaben Blockhaus Toledo 70-C
|
| Bohlenaußenmaß: |
5,95 x 7,40 m |
| Wandaußenmaß: |
5,75 x 7,20 m |
| Bohlenstärke: |
70 mm |
| Terrasse: |
10,7 m² |
| Innenfläche: |
39,5 m² |
| Seitenwandhöhe: |
2,28 m |
| Firsthöhe: |
3,25 m |
| Dachfläche: |
68 m² |
| Dachneigung: |
19° |
| Dachbretter: |
18 mm |
| Grundfläche: |
50,2 m² |
| Fußboden: |
- / 18 / 28 mm |
| Fundamenthölzer: |
60 x 70 mm |
Innentür:
Eingangstür: |
3 x 89 x 196 cm
1 x 89 x 196 cm |
Fenster:
Fenster:
Doppelfenster: |
1 x 53 x 53 cm
3 x 77 x 99 cm
2 x 153 x 99 cm |
| EAN: |
4744319015350 |
Hinweis:
Die Lieferung vom Ferienhaus Toledo 70-C Iso erfolgt als unbehandelter Bausatz inklusive Befestigungsmaterial, Fundamentplan und Montageanleitung. Alle Türen und Fenstermaße = Einbaumaße B x H. Im Lieferumfang von dem Wochenendhaus ist keine Dachpappe, Einrichtung oder Dekoration enthalten.
- Holzschutz-Farbe
- Bitumen Dachschindeln Set 25
- Giebel-Abdeckung aus Aluminium
- Dachrinne aus PVC, Zink oder Kupfer
- Aufbauservice.
Verantwortlicher für Produktsicherheit:
Siehe:
Herstellerinformationen