Qualitätsmerkmale Doppelcarport mit Abstellraum Vaasa 70-Iso
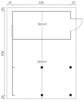
Doppelcarport mit zusätzlichem Abstellraum / Wirtschaftsraum
Blockbohlen Bausatz aus nordischer Fichte
Massive 70 mm Blockbohlen mit doppelter Nut und Feder
Winddichte Eckverzahnungen für sicheren Halt
Inklusive Sturmsicherung
Dach aus massiven Nut- und Federhölzern, keine Spanplatten
28 mm Holzboden im Abstellraum inkl.
2 Stellplätze mit 32,9 m²
Tür aus Leimholz mit Isolierglas inklusive Edelstahlschwelle, Beschlägen, Alu-Drückergarnitur und Schloss mit Profilzylinder
Kippfenster mit Isolierglas inklusive Beschlägen
Inklusive kesseldruckimprägniertem Fundamentplan, Befestigungsmaterial (Schrauben) und Aufbauanleitung
Statik und / oder Bauantrag auf Anfrage, gegen Gebühr möglich
Maßangaben Holzgarage Vaasa 70-Iso
Bohlenaußenmaß:
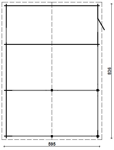
8,36 x 5,95 m
Wandaußenmaß:
8,16 x 5,75 m
Bohlenstärke:
70 mm
Dachüberstände:
27 / 20 cm
Nutzflächen:
46,9 m²
Rauminhalt:
118 m³
Seitenwandhöhe:
2,28 m
Firsthöhe:
3,02 m
Dachfläche:
55,9 m²
Dachneigung:
15°
Dachbretter:
18 mm
Fundamenthölzer:
45 x 70 mm
EAN:
4744319018634
Fußboden Abstellraum:
28 mm
Tür:
0,84 x 1,90 m
Kippfenster:
0,92 x 0,42 m
Optionen:
Bitumenschindeln (9,90 €/m²)
Set 22 = 66 m²
Alu-Giebelabdeckung Typ 2:
Set 7 = 14 lfdm.
4 Stück Pfostenträger verstellbar:
Mit Schrauben für Holzpfosten
100 Stück Unterlegpads:
8 x 60 x 60 mm
Hinweise:
Fenster und Türen = Einbaumaße (B x H). Wir empfehlen als Zubehör, die stabilen, verstellbaren Pfostenträger zu verwenden. 4 Befestigungsschrauben pro Pfostenträger sind im Lieferumfang enthalten.
Die Lieferung der Holzgarage Vaasa 70-Iso erfolgt unbehandelter Bausatz inklusive Montagematerial, Fundamentplan und Aufbauanleitung. Dachpappe oder Dekoration sind nicht in dem Bausatz enthalten.
Empfohlenes Zubehör
- Holzschutz-Farbe
- Dachrinne aus PVC, Zink oder Kupfer
- Fensterladen
- Aufbauservice.